Циклон БЦ-259-(4x4) в Оренбурге

Изготовим
под заказ
Цена с НДС на циклон БЦ-259-(4x4) с доставкой в
от 0 рублей
Условия в
В наличии на складе
Доставка ТК по России и Казахстану
Безналичный расчет
Циклон батарейный БЦ 259
Батарейный циклон БЦ 259
БЦ 259 циклон
Циклон БЦ 259
Групповой и батарейный циклон БЦ 259
Батарейный и групповой циклон БЦ 259
Устройство циклона БЦ 259
Циклон БЦ 259 устройство
Батарейный циклон БЦ 259 промышленный
Промышленный батарейный циклон БЦ 259
БЦ 259 циклон батарейного типа
Циклон батарейного типа БЦ 259
Циклон батарейный БЦ 259
БЦ 259 циклон
Групповой и батарейный циклон БЦ 259
Устройство циклона БЦ 259
Батарейный циклон БЦ 259 промышленный
БЦ 259 циклон батарейного типа
Видеообзор
Производительность 2.95 м³/ч
Технические
характеристики
Описание
товара
Сертификаты
и гарантии

Технические характеристики циклона БЦ-259-(4x4)

Тип циклона Батарейный, Циклон БЦ 259
Марка БЦ 259-(4x4)
Количество элементов 16 шт
Внутренний диаметр циклонного элемента 259 мм
Степень очистки газов 90 %
Допустимая температура газов на входе до 400 °C
Габаритные размеры: длина, ширина, высота 2624*2208*4480 мм
Масса 3600 кг
Применяемость Паропроизводительность 3.84 т/ч
Производительность 2.95 м³/ч
БЦ 259 циклон
Циклон БЦ 259

Промышленный циклон БЦ-259-(4x4) в Оренбурге

Батарейный циклон БЦ 259 (4х4) предназначен для сухого улавливания золы, уносимой дымовыми газами водогрейных котлов теплопроизводительностью 3,84 МВт, 2,3 Гкал/ч при сжигании твердых золосодержащих топлив. Циклон устанавливают в газовом тракте за котлом перед дымососом.

Конструкция циклона БЦ-259-(4x4)

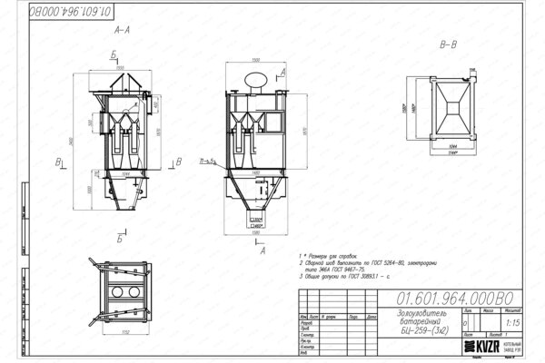
Батарейный циклон представляет собой пылеулавливающий аппарат, составленный из параллельно установленных стальных циклонных элементов, объединенных в одном корпусе и имеющих общие подвод и отвод газов, а также сборный бункер. Циклон БЦ 259-(4х4) предназначен для сухого улавливания золы, уносимой дымовыми газами из топок стационарных паровых или водогрейных котлов при сжигании твёрдого топлива. Такие циклоны имеют КПД до 90 % при гидравлическом сопротивлении 1200 Па.

Батарейный циклон БЦ-259-(4х4) состоит из набора стальных циклонных элементов диаметром 259 мм, выхлопных труб с закручивающими лопатками, решетки и опоры кожуха и верхней панели с теплоизоляцией, присоединительного патрубка и бункера. Запыленный газ подводят в секции золоуловителя одним общим потоком равномерно по всему входному сечению. Из общего потока запыленный газ поступает в циклонные элементы и получает вращение от лопаток закручивающего аппарата. Твердые частицы золы, двигаясь по инерции прямо, прижимаются к корпусу циклона и вместе с газовым потоком спускаются по конической части циклона, откуда ее периодически или непрерывно удаляют.

Циклон БЦ-259-(4х4) состоит из трех параллельно работающих секций. При малых нагрузках две секции отключают при помощи шибера. Это необходимо для сохранения оптимальной скорости движения газов в циклонных элементах при переменных нагрузках. Кроме того, секционирование уменьшает возможность ухудшения степени очистки газов за счет их перетока из одних элементов в другие через пылевой бункер, связанного с неодинаковым гидравлическим сопротивлением отдельных элементов (неодинаковостью из изготовления и неравномерным распределением газа по отдельным элементам), неодинаковой "пылевой нагрузкой" на элементы.

Для нормальной эксплуатации циклона необходимо поддерживать сопротивление при минимальной нагрузке котла не менее 40 кг/м2 за счет отключения одной секции, не допускать подсосов наружного воздуха, не допускать переполнения бункера золой, а также полностью выгружать уловленную золу из бункера при остановке котла.

Технические характеристики циклона БЦ-259-(4x4)

Марка Количество элементов Расход газа, тыс. м3/ч Габаритные размеры, мм (длина*ширина*высота) Масса, кг Рекомендуемая производительность котлов, т/ч
БЦ 259-(4х4) 16 9 2624*2208*4480 3600 3,84 (2,3)

 Габаритные размеры циклона

Тип золоуловителя H H1 H2 H3 H4 L L1 L2 L3 Масса, кг
Циклон БЦ 259-(4х4) 1874 2040 2950 3450 4480 2624 2628 2400 2424 3600

Поставляем запасные части циклона БЦ 259-(4х4)

Наименование запасных частей циклона БЦ 259-(4х4) Номер чертежа
Элемент циклонный БЦ-259 Т 323.01.01.000
Элемент циклонный БЦ-259 Т 323.01.01-01
Элемент циклонный БЦ-259 Т 323.01.01-02
Элемент циклонный БЦ-259 Т 323.01.01-03

Купить циклон БЦ-259-(4x4) в Оренбурге

Для того чтобы купить циклон БЦ-259-(4x4) в Оренбурге вы можете сделать заявку в отдел сбыта по телефону 8-800-700-0643, либо оформить заказ онлайн. Инженеры-консультанты дадут консультацию и рассчитают стоимость доставки. Транспортирование может осуществляться автотранспортом, ж/д полувагонами и речным транспортом.

Сертификаты и гарантии циклона БЦ-259-(4x4)

Сертификат для золоуловителей
Сертификат на золоуловители

Отзывы о продукции

Другая похожая продукция

61 000 ₽
1 584 000 ₽
804 000 ₽
256 000 ₽